
Pasillo automático de hojas batientes EG-SPT
Control de acceso compacto con una linea sencilla, elegante y personalizable
El EG-SPT es un torno de elegante diseño, con una sorprendente personalización. Versiones para una o dos hojas, y múltiples configuraciones para adaptarse a cualquier necesidad de paso. Su imagen vanguardista y la alta tecnología se unen para garantizar un acceso seguro y confortable.
Construcción en acero, robusto motor con funcionamiento electrónico y bidireccional, posibilidad de integrar dispositivos de proximidad, completo conjunto de sensores de alta seguridad. Todas estas características lo hacen idóneo para un gran flujo de paso en un dispositivo que se integrará con armonía en el entorno donde se instale. Y, por supuesto, 3 AÑOS DE GARANTÍA.
Materiales y acabados MODELO EG-SPT 1000 1W:
• Cabina y base: acero cepillado AISI 304
• Tapa superior: acero o vidrio en color como opción.
• Hoja de cristal: vidrio de seguridad templado de 10mm
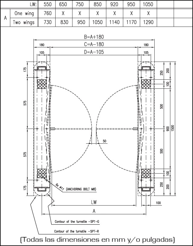
Dimensiones (cabina):
• Altura: 999 mm.
• Longitud:1500mm .
• Ancho: 180 mm.
• Altura de la barrera de cristal: 900 mm.
• Anchura de paso: 550 – 920 mm.
Equipamiento de serie:
• Motor de accionamiento magnético directo. (MDD)
• Modo Emergencia (apertura manual o automática mediante
batería)
• Fail Safe: desbloqueo de seguridad por fallo de alimentación.
• Interfaz de comunicación sistemas ID: Usb, ethernet, RS 485.
• Funcionamiento totalmente electrónico y bidireccional.
Opciones y accesorios:
• Acabados de superficie opcional:
colores RAL y metálicos: bronce , oro y plata
• Tapa superior: cristal con color personalizado.
• Equipos de señalización.
• Ranura para integración de lector de proximidad.
• Control remoto. Botonera o pantalla táctil.
• Iluminación de la hoja de cristal de paso. Marco LED.
Entorno operativo:
• Temperatura de funcionamiento -20 ° a 50 ° C (Consultar)
Seguridad:
• 36 pares de sensores. Detección de paso de más de una
persona. Antifraude por paso superior o inferior. Control
electrónico para configurar el nivel de seguridad contra el
paso no deseado (RFID). Funcionamiento manual remoto.
Fuente de alimentación:
• Entrada de alimentación 13,8 V DC.










