
Pasillo automático de hojas batientes PM910
Control de acceso compacto con una linea sencilla y elegante.
Portillo automático con paneles de cristal batientes mod. PM-900S, diseño actual para combinar en cualquier en-torno. Control de accesos mediante sistema de pasillo cerrado con paneles batientes de cristal que permite el paso sin obstáculos.
Está basado en el sistema de pasillo libre de obstáculos estando controladas sus funciones mediante células fotoeléctricas pudiéndose instalar en cualquier área de acceso vigilada.
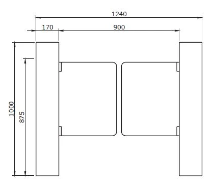
El sistema consiste en dos muebles o cuerpos en cuyo lateral hay un panel de cristal que efectúa el cierre del paso
y que opera de la siguiente forma:
El panel permanece siempre cerrando el pasillo de paso y solo se mueve plegándose al lateral del mueble, cuando recibe una señal de autorización de acceso desde un lector o pulsador, permitiendo que pase una persona y volviéndose a cerrar mediante fotocélula una vez efectuado el mismo.
Si intentan pasar dos personas a la vez el sistema dará una señal de alarma acústica para detectar la intrusión.
Como medida de seguridad el equipo dispone de un sistema de fotocélulas que evita que el panel se desplace y pueda golpear al usuario mientras permanece en el pasillo.
Características
- Carrocería en plancha de acero inoxidable AISI-304 o en AISI-316 de 1,5 mm de espesor y acabado satinado.
Puertas interiores con cerraduras de seguridad para acceder a los circuitos de mando del portillo, del sistema de control que se instale y para efectuar la sujeción al suelo. - Adaptación de lectores o elementos de control en los extremos del mueble ya sea montados en superficie o en el interior de la carrocería, dependiendo de las dimensiones y características del mismo.
- Pictogramas luminosos de señalización del funcionamiento de los pasillos.
- Mecanismo adaptado al funcionamiento determinado, con sistema de posicionamiento y amortiguación del panel, con sistema de seguridad para casos de emergencia. Tratamientos de las piezas y rodamientos engrasados de por vida.
- Placas electrónicas interconectadas para el manejo del equipo. Rango de alimentación universal. Configuración de los principales parámetros del equipo mediante switches. Posibilidad de manejo del equipo a través de RS232, RS485 ModBus y Ethernet. Protocolo TCP/IP disponible. Actualizable por medio de tarjeta micro-SD para nuevas funcionalidades.
- Paneles batientes de cristal security de 10 mm de espesor.
- Sistema de fotocélulas de seguridad y control.
- Sujeción al suelo a través de las pletinas del zócalo mediante tornillos y tacos de expansión que se suministran con el equipo.






